Skan Holz Emsland - Flachdach Doppelcarport aus Leimholz Breite 609 cm
Skan Holz Emsland - Flachdach Doppelcarport aus Leimholz Breite 609 cm
Dieser hochwertige Leimholz-Doppelcarport von Skan Holz überzeugt durch seine massive Konstruktion aus hochwertigem BSH-Fichtenholz und wird mit seinem modernen Flachdach zum echten Blickfang auf Ihrem Grundstück. Die Dacheindeckung besteht aus verzinktem Stahl-Trapezblech in anthrazitfarbener Polyesterbeschichtung mit Antikondensvlies und wird durch eine Metall-Dachrinne mit Fallrohr in Anthrazit ergänzt. Erhältlich in verschiedenen Ausführungen, überzeugt der Doppelcarport zudem mit einer hochwertigen Holzblende inklusive Aluminium-Abschlusskante.
Größe 1: 609 x 604 cm
Größe 2: 609 x 846 cm (Optional mit oder ohne Abstellraum erhältlich)
Ausführung: naturbelassen, eiche hell, nussbaum, weiß, schiefergrau oder anthrazit
Material Dacheindeckung: Stahl-Trapezblech mit Antikondensvlies / 19 mm Dachschalung aus Nut- und Federbrettern mit EPDM Folie
- Hochwertige Spitzenqualität & optimaler Schutz für zwei Fahrzeuge
- Optional mit oder ohne Abstellraum erhältlich (Gr. 2)
- Zwei Dachvarianten: Trapezblech / EPDM-Schalung
- Farbliche Vorbehandlung in Eiche hell, nussbaum, weiß, schiefergrau und anthrazit möglich
Einfach hier die E-Mail-Adresse eintragen und viele Vorteile
sowie sofort einen 5,00 CHF Newslettergutschein * per E-Mail sichern:
*Der Gutschein gilt ab einem Bestellwert von 100,00 CHF
Skan Holz Emsland - Flachdach Doppelcarport aus Leimholz Breite 609 cm
- Flachdach-Carport Leimholz
- Hochwertige Qualität mit Aluminium Abschlusskante
- Inklusive Metall Regenrinne
- Erhältlich in drei Ausführungen:
609cm x 604 cm (Größe 1)
609 cm x 846 cm (Größe 2 ohne Abstellraum)
609 cm x 846 cm (Größe 2 inkl. Abstellraum) - Pfosten: 12 cm x 12 cm
- Dachplatten mit Stahl-Trapezblech mit Antikondensvlies
Oder 19 mm Dachschalung mit EPDM-Folie - Dachgefälle nach hinten
- Leimholz, unbehandelt
- Optional: Farbliche Behandlung (eiche hell, nussbaum, weiß, schiefergrau, anthrazit)
- Schneelast: sk = 1,25 kN/m²
| Holzart | Leimholz, unbehandelt, Konstruktionsholz verleimt |
| Holzbehandlung | Farblich unbehandelt Eiche hell Nussbaum Weiß Schiefergrau Anthrazit |
| Pfosten | 6 Stück 12 x 12 x 220 cm (Größe 1) 8 Stück 12 x 12 x 220 cm (Größe 2 ohne Abstellraum) 13 Stück 12 x 12 x 220 cm (Größe 2 inkl. Abstellraum) |
| Dacheindeckung | Stahl-Dachplatten: Trapezblech mit Antikondensvlies |
| Schneelast | sk = 1,25 kN/m² |
| Windstaudruck | 0,95 kN/m² |
| Breite x Länge (überdachte Fläche) | 609 x 604/846 cm (Größe 1, 2) |
| Firsthöhe - Traufenhöhe | 248 cm - 236 cm (Größe 1) 248 cm - 231 cm (Größe 2) |
| Durchfahrthöhe | Vorne 223 cm, hinten 211 cm (Größe 1) Vorne 223 cm, hinten 206 cm (Größe 2) |
| Durchfahrtbreite | 550 cm |
| Fläche | 36,78 m² (Größe 1) 51,52 m² (Größe 2) |
| Umb. Raum | 89,02 m³ (Größe 1) 123,39 m³ (Größe 2) |
| Dachfläche | 36,42 m² (Größe 1) 51,06 m² (Größe 2) |
| Gefälle | 1,2° |
| Abstellraum | Deckelschalung H= 220 cm inkl. 1 Tür geschlossen, Anschlag rechts Durchgangsmaße: 86,5 x 192 cm Profilzylinderschloss mit 3 Schlüsseln |
| Inklusive | Befestigungsmaterial (inkl. Pfostenanker, ohne Beton), |
| Dachrinne | Metall-Regenrinne inkl. Ablaufrohr inklusive |
| Verpackung | siehe Datenblatt |
Inklusive Befestigungsmaterial (inkl. Pfostenanker, ohne Beton), Kopfbänder, Montageanleitung
| | |
Bitte beachten Sie: Die Abbildungen zeigen ggf. Zubehör, welches nicht im Lieferumfang enthalten ist.
![]() | Leimholz: Bei diesem Carport wird Leimholz verwendet. Es wird durch die Verleimung mehrerer getrockneter Holzteile hergestellt. Diese Verbindung ist wetterfest und es neigt weniger zur Rissbildung als natürlich gewachsenes Holz. Leimholz muss gegen Pilz- und Insektenbefall behandelt werden. Für farbige Anstriche ist es der ideale Untergrund. Verwenden Sie hierfür eine offenporige Lasur. |
![]() | Die Stärke der Pfosten beträgt mindestens 12 x 12 cm. |
![]() | Die im Lieferumfang enthalten Pfostenanker zum Einbetonieren oder Aufschrauben gewährleisten die sichere und langlebige Verbindung des Carports mit dem Grund. |
![]() | Die maximale Schneelast dieses Daches beträgt 1,25 kN/m²m². In der Regel ist eine Schneelast von 0,75 KN/m² völlig ausreichend. Lediglich in höheren Lagen (z.B. Alpen) sind höhere Schneelasten gefordert. Die genauen Angaben zur geforderten Schneelast erhalten Sie bei Ihrer örtlichen Gemeindeverwaltung bzw. dem Bauamt. |
Der Lieferumfang umfasst:
- 12 x 12 cm starke Pfosten
- Befestigungsmaterial
- Pfostenanker, ohne Beton
- Metall-Dachrinnenset
- Dacheindeckung gemäß Auswahl
- Holzblende mit Aluminium-Abschlusskante
- Kopfbänder gem. Abbildung
- Ausführliche und leicht verständliche Aufbauanleitung
Unser Lieferservice bringt Ihnen Ihr neues Carport bis an Ihre Bordsteinkante. Die Lieferung erfolgt mit einem großen 40 Tonnen-LKW. Daher ist es notwendig, dass der Anfahrtsweg zu Ihrer Lieferadresse für einen solchen LKW befahrbar ist.
Skan Holz Farbsystem - Höchste Qualität und Perfektion ab Werk:
Viele Skan Holz-Produkte können auf Wunsch direkt ab Werk farblich behandelt werden. Ihr Bauwerk wird optimal geschützt und Sie können sofort nach der Anlieferung mit dem Aufbau beginnen.
Die farbliche Behandlung von Holzbauteile bietet folgende Vorteile:
- Schutz vor Bläuebefall
- Schutz vor UV-Bestrahlung
- Blättert nicht ab
- Vermindert das Quell- / Schwindverhalten
- Durchscheinen der Holzstruktur
- Dünnschichtig
- Zeitliche Ersparnis
Skan Holz Farb-Möglichkeiten direkt ab Werk:
Gartenhäuser »TREND«: Steck-Schraub-Eckverbindung, 28 mm Wandstärke (Almelo, Delft, Hengelo, Ostende, Texel und Venlo)
Die Blockbohlenhäuser werden aus nordischer Fichte gefertigt. Blockbohlen und Eckblenden sind von außen, die Dachblenden, Fenster & Türen beidseitig farbbehandelt. Die Farbe wird durch dreiseitiges maschinelles Spritzen aufgebracht. Produktionsbedingt sind die Innenseiten der Blockbohlen sowie Schnittkanten, Fußboden, Dachschalung und Pfetten unbehandelt. Unbehandelte Teile des Bausatzes, die sich im Außenbereich befinden (z.B. überstehende Dachunterseiten, Dachpfetten) sind ungeschützt und müssen bauseits mit einer Grundierung und anschließend mit einer Lasur behandelt werden.
Terrassenüberdachungen, Pavillons, Carports sowie Vordächer:
Für diese Produkte bietet Skan Holz eine Grundierung inklusive lichtechtem, farbigem Erstanstrich an. Hier wird standardmäßig unbehandeltes Konstruktionsvollholz, Leimholz und Douglasie sowie mit Salzen imprägnierte Fichte verarbeitet. Somit wird mit einer individuellen Farbanpassung für einen umfassenden Wetterschutz gesorgt. Dabei erfolgt das Aufbringen der Lasur durch vierseitiges maschinelles Bürsten der Holzteile.
Wichtige Informationen zur Farbbehandlung:
- Ablagespuren sind technisch bedingt nicht zu vermeiden.
- Durch die verschiedenen Holzarten als Untergrund wirken die Farbtöne unterschiedlich.
- Abgedruckte Farbmuster sind nicht verbindlich.
Wissenswertes:
Mögliche kleine Schäden am Anstrich während des Transports oder Aufbaus können mithilfe der bereitgestellten Lasur (Reparaturmenge) ausgeglichen werden.
Durch einen Zwischenschliff mit feinem Sandpapier und einen zusätzlichen Anstrich bauseits kann die Holzoberfläche weiter verbessert werden. Holz im Außenbereich unterliegt ständiger Witterungseinwirkung. Daher empfehlen wir Ihnen alle 4 bis 5 Jahre, am besten vor sichtbaren Schäden Renovierungsanstriche mit einer wasserbasierten Holzlasur durchzuführen.
Bausätze aus imprägnierter Fichte und Douglasie können aufgrund ihrer Beschaffenheit nur in einem dunkleren Farbton behandelt geliefert werden. Um den benötigten Farbbedarf zu ermitteln, multiplizieren Sie die Holzoberfläche des Bausatzes mit 80 ml Lasur/qm. Für die Grundierung verdoppeln Sie diese Menge. Der Bedarf kann je nach Trockenheit, Voranstrichen oder Verarbeitung variieren. Die genauen Angaben zur Holzoberfläche finden Sie in unseren technischen Produktbeschreibungen.
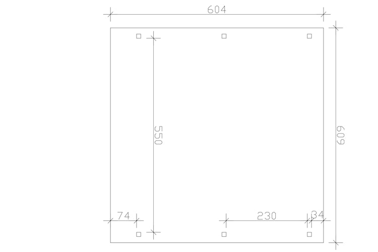
Den Fundamentplan des Carports finden Sie am Ende der Bildergalerie. Er zeigt Ihnen die richtige Ausrichtung der Bodenverankerungen, damit Sie Ihren Carport perfekt aufstellen können. Hier finden Sie weitere Hinweise zur Vorbereitung der Stellfläche und der Fundamenterstellung.
Pläne zum Einreichen bei Behörden, Fundamentpläne und Statiken erhalten Sie gerne auf Anfrage. Kontakt
Möchten Sie die Montage Ihres neuen Carport lieber einem Profi überlassen?
Wir bieten Ihnen unseren kompetenten und bundesweiten Montageservice zum Festpreis an. Wählen Sie zwischen den angebotenen bzw. zur Verfügung stehenden Montageoptionen.
Inkl. Montage
Der Preis für die Option "inkl. Montage" beinhaltet die Montage des kompletten Carportbausatzes, ohne optionales oder zusätzliches Zubehör. Möchten Sie Ihre Zubehörteile ebenfalls montieren lassen, wählen Sie bitte beim entsprechenden Zubehör ebenfalls die Option "inkl. Montage" aus.
Inkl. Montage (inkl. Fundamentarbeiten und Betonieren der Pfostenanker)
Der Preis beinhaltet das Einbetonieren der Pfostenanker, sowie anfallende Fundamentarbeiten. Der Beton für die Fundamentpunkte ist nicht im Montage-Preis enthalten und ist bauseits bereitzustellen. Sehr gerne können unsere Monteure den benötigten Beton am Montage-Termin mitbringen, gegen Berechnung der anfallenden Kosten. Bitte geben Sie uns hierzu bei der Terminabsprache eine kurze Info.
Wählen und profitieren Sie von unserem besonderen Service: dem Sorglos-Paket für die Anlieferung und Montage Ihres Carports
√ Kein lästiges Schleppen der Pakete zum Montage-Ort
√ Kein Überprüfen der Einzelteile
√ Keine Zwischenlagerung bis zur endgültigen Montage
√ Keine unnötigen Urlaubstage für die Anlieferung und Montage
√ Einbetonieren der Pfostenanker, sowie anfallende Fundamentarbeiten
(Der Beton ist nicht im Montage-Preis enthalten - kann jedoch gegen Aufpreis zur Verfügung gestellt werden)
Unser Sorglos-Paket macht es möglich! Nähere Informationen
Möchten Sie weitere Informationen zu den Montagebedingungen? Hier informieren
Skan Holz
Skan Holz ist ein Unternehmen, das sich auf die Herstellung und den Vertrieb von hochwertigen Holzprodukten spezialisiert hat. Das Unternehmen wurde 1978 gegründet und hat seinen Hauptsitz in Deutschland und Produktionsbetriebe in Europa.
Sie bieten eine breite Palette von Holzprodukten an, darunter Vordächer, Gartenhäuser, Carports, Pavillon, Terrassenüberdachungen und Holzgaragen. Die Produkte zeichnen sich durch ihre hohe Qualität und sorgfältige Verarbeitung aus, wodurch sie bei Kunden sowohl im privaten als auch gewerblichen Bereich beliebt sind.
Das Unternehmen hat sich im Laufe der Jahre zu einem führenden Anbieter von Holzprodukten in Europa entwickelt und verfügt über ein weitreichendes Vertriebsnetzwerk. Skan Holz legt großen Wert auf Nachhaltigkeit und umweltfreundliche Produktion, in dem es Holz aus nachhaltiger Forstwirtschaft bezieht und ressourcenschonende Fertigungsverfahren einsetzt.
Mit einer langjährigen Erfahrung und einem breiten Sortiment ist Skan Holz eine vertrauenswürdige Marke für Kunden, die hochwertige Holzprodukte für ihre Gärten und Outdoor-Projekte suchen.
- Doppeltür aus Fichtenholz
- Inkl. Drückergarnitur und Befestigungsmaterial
- Schützt vor Witterungseinflüssen
- Reduziert die Lautstärke des Niederschlags
- Fügt sich optimal in Umgebung ein
Bewertungen von Kunden, die ihre Ware nicht bei uns gekauft haben, werden entsprechend gekennzeichnet.
Mit dem Absenden des Kontaktformulars stimmen Sie der Verarbeitung Ihrer Daten durch uns zu. Hier finden Sie unsere Datenschutzbestimmungen.
Sie können die erste Person sein, die zu diesem Produkt eine Bewertung schreibt.
Sie können der erste Kunde sein, der zu diesem Produkt eine Frage stellt. Wir freuen uns auf Ihre Frage.
Wenn Sie Fragen zu Ihrer Bestellung oder zur Verfügbarkeit des Artikels haben, schreiben Sie uns bitte über das Kontaktformular.



